Cross Street, Leamington Spa

Asking Price Of £310,000
  • 2
  • 2
  • 1

Description

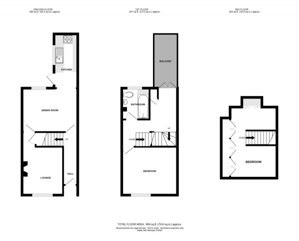
An attractive period property with two double bedrooms, first floor study area with roof terrace, two reception rooms, cellar, courtyard garden and many original features to include sash windows. The property is set within the town centre conservation area, is within an easy walk of Jephson Gardens, Newbold Common and mainline train station. DOOR TO

ENTRANCE HALL With radiator, oak door and staircase to the first floor.

DINING ROOM 12' 4" x 9' 8" (3.76m x 2.95m) With radiator and sash window overlooking the rear courtyard.

KITCHEN 13' 2" x 5' 3" (4.01m x 1.6m) Having a range of cupboard and drawer units with matching wall cupboards and fitted shelving. Rounded work surfaces, tiled flooring, integrated washing machine, four ring gas hob and electric oven with stainless steel splashback and extractor hood over. Side door to the courtyard.

LOUNGE 10' 8" x 9' 0" (3.25m x 2.74m) With cast iron feature fireplace, radiator, TV aerial, door to and steps down to:

CELLAR 12' 2" x 10' 3" (3.71m x 3.12m) With radiator. This is ideal for storage or a gym.

FIRST FLOOR LANDING

STUDY AREA 9' 7" x 5' 9" (2.92m x 1.75m) With radiator, smoke detector and built-in storage cupboard, housing a Vaillant combi boiler fitted in 2022. French double doors open to the south facing roof terrace.

BEDROOM ONE 12' 4" x 10' 4" (3.76m x 3.15m) With radiator.

BATHROOM 6' 7" x 6' 1" (2.01m x 1.85m) A modern re-fitted bathroom comprising a Villeroy and Boch suite with panelled bath having shower over and folding shower screen, wall mounted wash basin, w.c., heated towel rail and complementary floor and wall tiling.

STAIRCASE TO SECOND FLOOR

BEDROOM TWO 10' 1 Max" x 12' 9 Max" (3.07m x 3.89m) A large double room, flexible in design, with built-in wardrobes and access to under eaves storage. Radiator and smoke detector.

OUTSIDE To the rear is a low maintenance south facing courtyard garden with paving and side access. A £25 per annum L2 parking permit can be obtained from Warwick County Council.

Read More

Cross Street, Leamington Spa

Mortgage Calculator

These results are for a repayment mortgage and are only intended as a guide. Make sure you obtain accurate figures from your lender before committing to any mortgage. Your home may be repossessed if you do not keep up repayments on a mortgage.

Request a Viewing 01926 257 540