Elmbank Road, Kenilworth

Asking Price Of £595,000
  • 4
  • 1
  • 1

Description

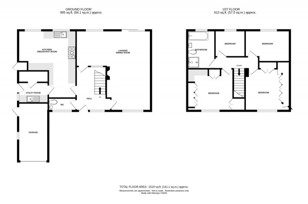
A superb opportunity to purchase this well planned detached family home in a very sought after residential location which is within easy walking distance of the old High Street, Abbey Fields, Priors Field and St Augustine's Primary Schools. This is a much loved family home offering the chance for a new buyer to further extend and modernise. The location, as mentioned, is very desirable with the house having nice views to the front and rear. DOOR TO

ENTRANCE HALL With understairs storage space and radiator.

CLOAKROOM With modern circular vanity basin having double cupboard under and a concealed cistern w.c. with storage area over.

'L' SHAPED LOUNGE/DINER 23' 0" x 19' 6" (7.01m x 5.94m) A large living room with dining area to the side, dual aspect windows with pleasant views and timber fire surround with marble infill and hearth. Two wall light points, three radiators and patio door to rear garden.

'L' SHAPED KITCHEN/BREAKFAST ROOM 15' 2" x 16' 1" (4.62m x 4.9m) Max Having an extensive range of modern white gloss cupboard and drawer units with matching wall cupboards, a Rangemaster range cooker with stainless steel splashback and extractor hood over. Single drainer sink unit, round edged worksurfaces, housing for side by side fridge/freezer and space for breakfast table and chairs. Amtico flooring.

UTILITY ROOM 8' 1" x 5' 3" (2.46m x 1.6m) Having side entrance door, stainless steel sink unit with cupboards under and wall cupboards over, space and plumbing for washing machine and door to boiler cupboard housing the Potterton floor standing gas boiler.

FIRST FLOOR LANDING

BEDROOM ONE 11' 8" x 10' 4" (3.56m x 3.15m) Exc Wardrobes Having a range of professionally designed and fitted wardrobes to include three doubles, two singles and a further double central unit with drawers under.

BEDROOM TWO 11' 8" x 11' 3" (3.56m x 3.43m) With a large range of built in wardrobes and a corner central dressing table unit.

BEDROOM THREE 11' 11" x 7' 2" (3.63m x 2.18m) With garden views, built in wardrobes and radiator.

BEDROOM FOUR 8' 2" x 7' 2" (2.5m x 2.2m) With garden views, built in wardrobes and radiator.

BATHROOM With access to roof storage space via pull down loft ladder. A fully tiled bathroom with panelled bath, pedestal wash basin, w.c., and separate corner shower enclosure. Airing cupboard housing hot water cylinder.

OUTSIDE

SINGLE GARAGE With electric roller door, light, power, side entrance door and shelving.

PARKING To the front of the property is ample parking for several vehicles as well as a car port.

GARDENS The front garden has an area of lawn. At the side is gated access and a path that leads to the attractive rear garden primarily laid to lawn with patio area.

Read More

Elmbank Road, Kenilworth

Mortgage Calculator

These results are for a repayment mortgage and are only intended as a guide. Make sure you obtain accurate figures from your lender before committing to any mortgage. Your home may be repossessed if you do not keep up repayments on a mortgage.

Request a Viewing 01926 257 540