Coventry Road, Kenilworth

Asking Price Of £410,000
  • 3
  • 2
  • 1

Description

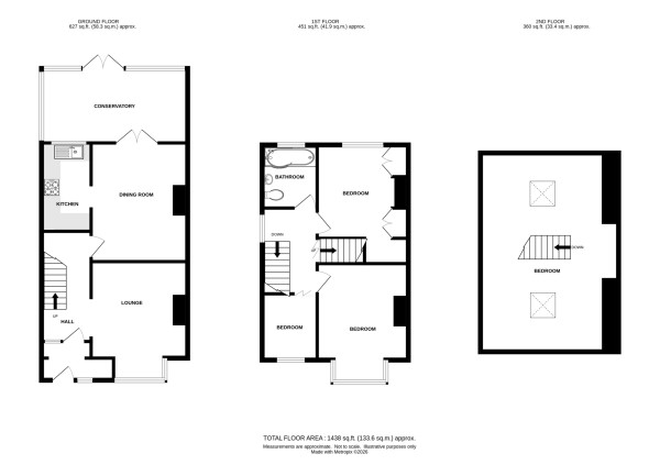
A mature family sized home providing spacious and flexible accommodation retaining many traditional features with scope for extending and modernising. The property is set well back from the road with a long front garden, driveway parking for two vehicles and a good size rear garden with further off road parking if desired. There are three bedrooms plus a loft room for occasional use. On the ground floor is the lounge with bay window, a dining room with kitchen and utility/conservatory off. The location is convenient for The Greenway, Kenilworth Common plus schools and bus services. ENCLOSED PORCH Ideal for storage and having a door to

ENTRANCE HALL With radiator and understairs storage. open access into

LOUNGE 14' 2" x 11' 2" (4.32m x 3.4m) Into Bay With walk in bay window, French double doors to the front garden and seating area. Radiator.

DINING ROOM 14' 5" x 11' 5" (4.39m x 3.48m) With radiator and French doors to the conservatory.

KITCHEN 10' 5" x 5' 7" (3.18m x 1.7m) having a range of cupboard and drawer units with matching wall cupboards and solid oak worktops. Gas cooker as fitted, stainless steel double bowl sink unit and complementary tiling.

CONSERVATORY 16' 5" x 8' 1" (5m x 2.46m) Currently used as a utility and conservatory with space and plumbing for washing machine and direct access to rear garden.

FIRST FLOOR LANDING

BEDROOM ONE 14' 5" x 11' 5" (4.39m x 3.48m) Into Bay With radiator.

BEDROOM TWO 13' 8" x 11' 7" (4.17m x 3.53m) With radiator and double door built in wardrobe.

BEDROOM THREE 8' 0" x 6' 0" (2.44m x 1.83m) With radiator. This room is used as a study at present.

BATHROOM Having a 'p' shaped bath with shower over and curved shower screen. Vanity wash basin with cupboard under, w.c., and heated towel rail.

LOFT ROOM 17' 1" x 11' 9" (5.21m x 3.58m) Accessed via a staircase from the landing, this is a large loft room with newly fitted radiator (Feb 26), has a cupboard housing the Worcester gas boiler and two large Velux windows.

OUTSIDE

PARKING To the front of the property is driveway parking for two vehicles. To the rear of the property is a secure gated access with hard standing that can also provide additional parking for a motorhome, cars, boats, caravan etc.

FRONT GARDEN The property is set well back from the road with a very pretty front garden having a lawn and wide variety of well established trees, shrubs and borders.

REAR GARDEN The sunny rear garden enjoys a west facing aspect with a patio area and is easily maintained with bark chippings and a paved path that leads to the log cabin with light and power connected.

Read More

Coventry Road, Kenilworth

Mortgage Calculator

These results are for a repayment mortgage and are only intended as a guide. Make sure you obtain accurate figures from your lender before committing to any mortgage. Your home may be repossessed if you do not keep up repayments on a mortgage.

Request a Viewing 01926 257 540